ワコーレ芦屋ディアハウス

52,800,000円

・南向き・日当リ・通風良好
・洋室7.5帖に防音室有リ
・DEN (多目的スペース)有リ
・ペット飼育可(規約有)

住所: 芦屋市西蔵町4−8

最寄り駅: JR神戸線「芦屋」駅 【徒歩15分】、阪神本線「打出」駅【徒歩7分】

現況: 空き家

専有面積: 80.03㎡(24.20坪) バルコニー11.52㎡

用途用地: 第1種中高層住居専用地域

規模構造: RC造地上 5階建2階部分

建築年月: 2014年(平成26年)9月

駐車場: 空有り7,000円/月(12月15日現在)

東山アーバンライフ

39,800,000円

・最上階・東南角部屋
・室内デザイナーズリノベーション済

住所: 芦屋市東芦屋町22-20

最寄り駅: JR東海道線「芦屋」駅 【バス7分】、「芦屋市民プール前」停【徒歩1分】

現況: 空き家

専有面積: 127.40㎡(38.53坪)・壁芯

用途用地: 第1種低層住居専用地域

規模構造: 鉄筋コンクリート造 陸屋根 6階建

建築年月: 1974年(昭和49年)7月

駐車場: 空き無し

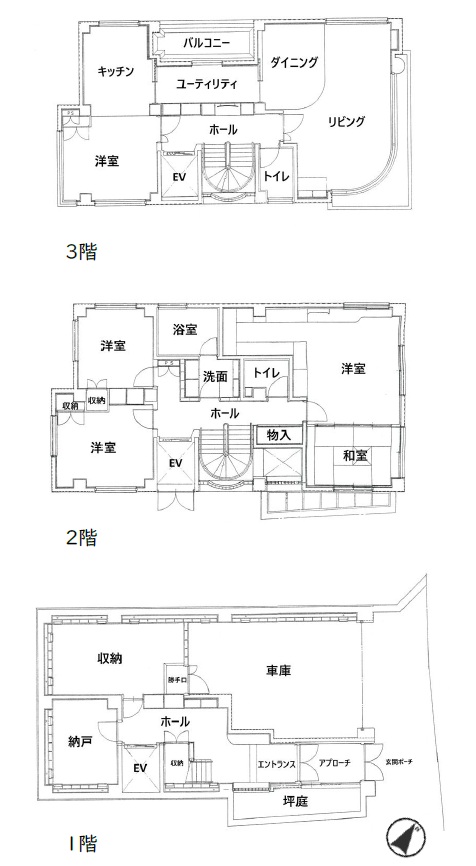
芦屋市山手町 戸建

158,000,000円

・閑静な住宅街
・前面道路幅員 約7.5m
・駐車場 複数台も可

住所: 芦屋市山手町

最寄り駅: 阪急神戸線「芦屋川」駅 【徒歩15分】

現況: 空き家

地積地目: 230.15㎡(69.62坪)公簿/宅地

用途用地: 第1種低層住居専用地域

規模構造: 鉄筋コンクリート造 3階建

建築年月: 1993年(平成5年)10月

床面積: 延床面積 375.68㎡(113.64坪)/1階122.26㎡、2階126.71㎡、3階126.71㎡

親王塚町 店舗付住宅

145,000,000円

・山手幹線沿い、南西角地の好立地
・JR「芦屋」駅まで徒歩8分

住所: 芦屋市親王塚町10番1号

最寄り駅: JR神戸線「芦屋」駅 【徒歩8分】、阪神本線「打出駅」【徒歩12分】

現況: 空き家

地積地目: 84.12㎡(25.44坪)公簿/宅地

用途用地: 第1種中高層住居専用地域

規模構造: 鉄骨造 4階

建築年月: 1998年(平成10年)3月

床面積: 1階47.70㎡、2階7.27㎡、3階55.98㎡、4階48.71㎡ 計159.66㎡

駐車場: 有り 1台分

芦屋市翠ケ丘町[更地]

159,800,000円

・約75坪の整形地
・閑静な住宅街
・建築条件付きではございません
・岩園小学校区

住所: 芦屋市翠ケ丘町

最寄り駅: JR神戸線「芦屋」駅【徒歩約12分】

現況: 更地

面積: 248.15平米(約75.06坪)

用途地域: 第1種中高層住居専用地域

建蔽容積: 60%/200%